top of page
4 IN A ROW SANTA CRISTINA
4 IN A ROW SANTA CRISTINA
4 IN A ROW SANTA CRISTINA
Home
Projects
REFUGE IN LA GARROTXA
SOCIAL HOSTING S&H
GREEN BELT OF PALS
SA PORTALADA DES PORT DE MAÓ
NEW ADMIN CENTRE PDA
BUSINESS CENTRE S'AGARÓ
SPORTS CITY CASTELL D'ARO
4 IN A ROW SANTA CRISTINA
WALL HOUSE
TREE HOUSE MODULE
HYPERLOOP DESERT CAMPUS
ANNA & RUBÉN'S HOUSE
WOMEN'S HOUSE
34 SOCIAL HOUSING UNITS SANTA ANA
REFURBISHMENT OF PRAZA DO BARREIRO
NEW CALASPARRA CITY COUNCIL
AN APPROACHMENT TO THE GARDEN
FROM GARAGE TO LEASURE SPACE
BETWEEN PATIOS AND TERRACES
FROM GARDEN WALL TO AN OUTDOOR LOGGIA
Furniture design
News
About
CV
Services & contact
More
Use tab to navigate through the menu items.
BETWEEN PATIOS AND TERRACES
PREVIOUS STATE. GROUND FLOOR & ROOF
PREVIOUS STATE. GENERAL ELEVATIONS & SECTIONS
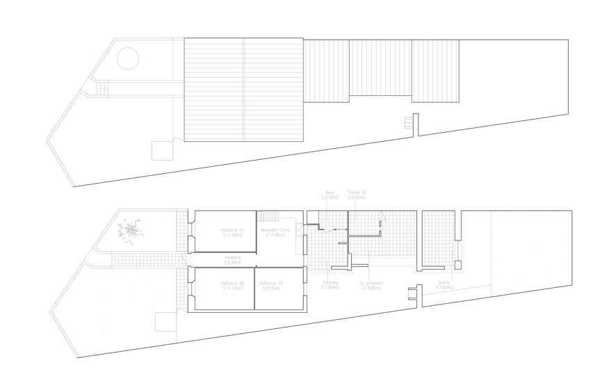
PROPOSAL. GROUND FLOOR & FIRST FLOOR
PROPOSAL. SECOND FLOOR & ROOFS
PROPOSAL. GENERAL ELEVATIONS & SECTIONS I
PROPOSAL. GENERAL ELEVATIONS & SECTIONS II
PROPOSAL. VIEW I
<< BACK
bottom of page